Junta da luz verde a la construcción del nuevo IES 'Juan Bosco' en Alcázar, con un plazo de ocho meses para su finalización.

En un paso significativo para la educación técnica en Castilla-La Mancha, el Gobierno regional ha asignado a la compañía Gestión y Ejecución de Obra Civil, S.A. la construcción de un nuevo edificio destinado a talleres de formación profesional en el instituto de educación secundaria ‘Juan Bosco’, ubicado en Alcázar de San Juan. Esta inversión asciende a 3.692.157 euros y se prevé que la obra esté completa en un plazo de ocho meses.
José Caro, delegado de Educación, Cultura y Deportes en Ciudad Real, ha destacado la relevancia de este proyecto, calificándolo de “histórico y esperado” por la comunidad educativa local. Según Caro, esto representa un “punto de inflexión” en el proceso de renovación completa del centro y se erige como la mayor inyección de recursos en la educación de la provincia.
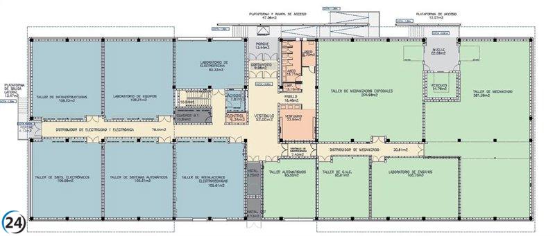
El objetivo principal del proyecto es crear un edificio moderno y eficiente que albergue talleres de las especialidades de electricidad-electrónica y mecanizado. Se pretenden incluir características como accesos directos desde el área de aulas, una estructura prefabricada de hormigón, y medidas para garantizar que el espacio sea funcional y accesible. Entre las innovaciones, se contempla también un espacio diáfano, una terraza central para un futuro campo fotovoltaico y un diseño que prevenga inundaciones.
Los ciclos formativos que se ofrecerán en este nuevo espacio incluyen 'Mecanizado' a nivel medio y 'Programación de la producción en fabricación mecánica' a nivel superior en la familia profesional de Fabricación Mecánica. Asimismo, la familia de Electricidad y Electrónica contará con ciclos como 'Instalaciones de Telecomunicaciones', 'Instalaciones Eléctricas y Automáticas', 'Mantenimiento electrónico' y 'Sistemas electrotécnicos y automatizados'.
Este edificio, que se desarrollará completamente en planta baja y abarcará 1.828 metros cuadrados, será erigido en un área del patio actual del centro. Se financiará en dos etapas: 731.047 euros en este año y 2.961.110 euros en 2026, con un claro compromiso a largo plazo para la educación técnica.
José Caro también enfatizó que la modernización del IES ‘Juan Bosco’ se llevará a cabo en tres fases. La primera fase, ya iniciada con la construcción de los talleres, busca asegurar que las instalaciones sean aptas para la formación adecuada de los estudiantes. Las siguientes fases incluirán la renovación del edificio principal y la expansión de instalaciones, incluyendo un nuevo pabellón deportivo.
El delegado provincial ha expresado su agradecimiento a las familias y al personal del instituto por su “paciencia” y “comprensión” durante el desarrollo de este proyecto, que ha enfrentado desafíos como el rescate del contrato con la empresa anterior, lo que provocó retrasos en su implementación.
Categoría:
Newsletter
Entérate de las últimas noticias cómodamente desde tu mail.